Tiny House Construit en 2023.Cette dernière version de notre gamme OB1 a été conçue pour avoir l’allure d’un chalet moderne, à l’intérieur comme à l’extérieur, tout en conservant les hauts plafonds, l’abondance de lumière et le plan d’étage ouvert pour lesquels nous sommes reconnus dans l’industrie.
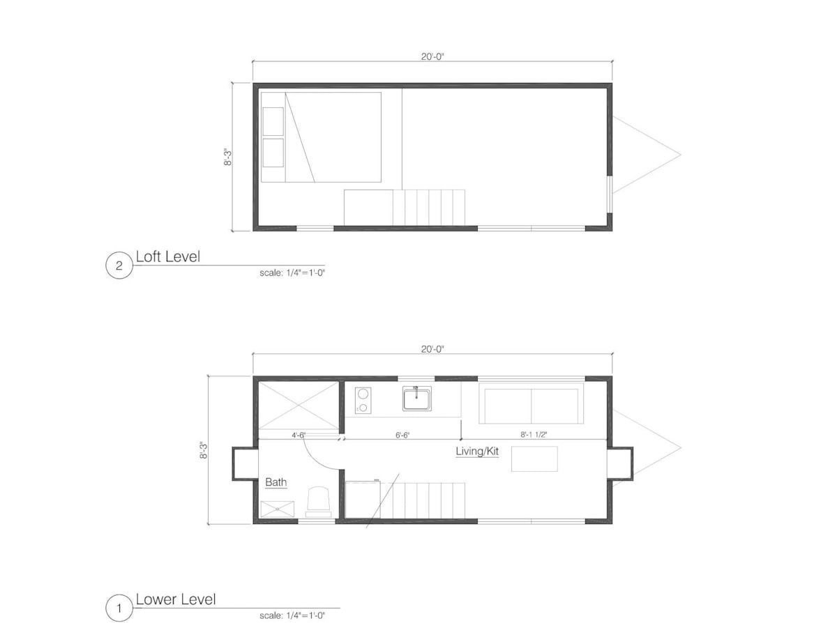
L’espace de vie présente un haut plafond de 10 pieds avec beaucoup de verre pour profiter de la lumière naturelle et de la vue sur l’extérieur. Le niveau principal mesure 8′-6« x 20′-0 », ce qui représente 170 m² d’espace habitable. La chambre loft mesure 6′-0« de large x 7′-6 » de long, soit 45 m², et peut facilement accueillir un matelas queen size. Le loft est accessible par un escalier avec des espaces de rangement.
Il dispose d’une salle de bain complète avec une grande douche de 30« x 52 » que vous ne trouverez pas dans la plupart des tiny homes. La cuisine est spacieuse avec un comptoir de 6′-6« et de la place pour un grand réfrigérateur de 24 » de large x 60 » de haut.
Cette unité est livrée clé en main avec toutes les installations et les appareils électroménagers inclus.
Châssis
20′-0« x 8′-6 » de large
Deux essieux de 7,000lb
Plancher
Sous-plancher T&G 3/4
Isolation en mousse pulvérisée à cellules fermées R-13
Plancher de vinyle sur pare-vapeur
Murs
Murs à colombages en bois 2×4
Revêtement T-111 3/4 » avec planche Hardie
Pare-vapeur avec enveloppe de maison
Isolation en mousse pulvérisée R-13
Finition en cloison sèche
Plafond
Chevrons de toit 2×6
Revêtement en contreplaqué
Barrière contre les fuites de toit pelable et autocollante
Toit métallique Galvalume 26ga
Isolation en mousse pulvérisée R19
Plafond en bois à recouvrement
Fenêtres et portes
Grande porte d’entrée en vinyle avec verre à impact
Toutes les fenêtres en vinyle avec verre à impact
Électricité
30amp 120v service
Plafonniers LED de 4 pouces
Climatiseur Pioneer de 12 000 btu avec chauffage
Plomberie
Alimentation en eau froide et chaude en Pex 1/2
Conduites d’eaux usées en PVC avec raccord de 3
Chauffe-eau au propane
Cuisine
Armoires Shaker grises
Dosseret en carrelage
Comptoir en quartz
Table de cuisson 2 brûleurs au propane en inox
Évier de cuisine en inox à une cuve
Robinet en acier inoxydable avec pulvérisateur extractible
Réfrigérateur en acier inoxydable
Salle de bain
Toilette à chasse d’eau
Meuble évier
Douche en céramique
Sol en galets


















Avis
Il n’y a pas encore d’avis.